栏目类别:居住空间设计奖
作者:蔡海安
发布时间:2022-12-06 14:36

设计说明Design Description
南朗,位于广东珠海与中山交界处,驾车仅3分钟,就可以到达孙中山故居纪念馆,故居的另一边就是槟榔山。
这个家就安静地坐落在山脚下,周边环境静谧,
在现代文明拔起的钢筋丛林中,我们试图借景打造一间集自然、关怀、艺术与生活融为一体的沉浸式居住体验。
屋主二人常年在澳门工作,提出的需求其实很特殊,
正是因为这个特殊的需求,造就了这个项目落地的可能性。
女主人的规划是9月份就从澳门回到湖南,开启带娃上学的生活,先生一人留在澳门。
这个88平的三居室,就成了探亲度假的短暂中转站,它并不是一个长期性住宅。

▲原始平面图
业主需求及原户型缺点
原户型结构属于紧凑型三居室,套内仅88平,
厨卫空间都属于刚好够用,要想达到舒适的度假功能,
必须对户型进行优化,同时由于是非长期居住需求,
设计师需要在有限的预算内完成设计与落地。
经过沟通,我们和屋主都有一个共同的目标,
就是希望这个家的模样,它应该是放松的、治愈的。
它应该是另一个“家”,我们不按常规出牌,完全弱化了客厅沙发的存在感。
既有纯粹的自然,又有简约的质朴,还要有生活的精致。
可以轻松愉悦地在这里和先生、孩子,父母亲共同度过一个假期。
打开窗享受山与微风的自然体验,夜晚关上窗,享受另一种灯光下的纯净空间。
平面布局优化


拆除厨房轻质墙体,延伸厨房空间,扩大操作台面,
隐藏弱电管线的同时还分隔出常用的小鞋柜,
弧形台面和波浪板给动线通道合理缓冲。
改造后的厨房与餐厅相邻,
将原本窄小的餐厨空间扩大,
创造了开阔的空间视野,
通过地面地砖与木地板两种材质的划分,
隐形界定了空间的功能属性。

哑光水磨石地砖与纹理丰富的木地板
构成硬朗与自然的肌理强对比。
将原生活阳台墙体及门窗拆除,
原有四根粗大排水管埋入墙内,分割出洗衣晾晒空间。

光脚走在家,能够触到砖面的柔和和木地板的细腻。
在繁归于简的细节中,
以简单朴素的语言和曲面线条的利落构建空间秩序。

拆除客厅原推拉门,将阳台纳入室内,
同时设置一面玻璃砖墙,过滤阳光。

墙顶面一体清浅的色调,馨暖的灯光,
室内材质自然的纹路,以及恰到好处的植物点缀,
共同组合为轻松惬意且自由开放包容的居住空间。
打破原有布局后的空间逻辑背后,
是比例细节的优化和富有层次的格局规划。

当夕阳落下,衍生光影流动,
墙上的月亮灯让空间多了一份温润触感,
形成美学与品质相结合的全新家居体验。

对客房与客厅相邻墙体进行改动,
隔出一个酒柜空间,
业主从澳门和外出旅游搜集回来的酒与咖啡,
可以在这里存放与展示。
同时酒柜门打开即关闭了过道,
让客餐厨LDK形成了独立空间。
需要特别说明的是,
柜门上特别设计的LZ黄铜拉手,
是取自男女主人姓氏的巧妙组合。

门和通道是空间的重要组成部分。
门未开时的好奇和门打开后的所见,
还有墙上肌理画与投影幕布的重叠,
呈现了多种生活情境。

整体设计思路将室外自然引入室内,墙面的原创月亮灯,
是现场木工师傅一点一点根据图纸完成
地毯则是选用渐变色,彷佛一湾来自天池的水。

全屋的灯光设计经过深思熟虑,
让人身处家中能够感受每一寸肌理随光影的变幻。
于山下,于丛林之外,
在远离繁华都市中心开辟出了一方宁静之地。

推开主卫的门,原本很小的空间,
在墙面砖材质、灯光、白色洁具、铜色龙头的点缀下,
瞬间放大,不再逼仄。
至细微到地漏的处理,无不透漏着主人对生活品质的要求。

为了从视觉上扩大主卫空间,同时为了满足浴缸的摆放,
将主卫门洞墙体全部拆除,改成轨道嵌入天花内的玻璃移门。
同时,用焦糖色复古墙砖作为浴缸背景点亮整个卫浴空间。

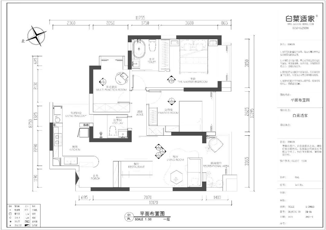
▲施工图-布局
好的私宅设计是有生命的,它随着屋主的入住和使用,才开始延续和生长。希望这个小空间,慢慢成为LZ宅一家人的大风景。

项目信息
名称 | 依山而居的另一个家
地址 | 广东中山山海郡
户型 | 三房两厅两卫
面积 | 88平
模式 | 全案托管
材料 | GFIT ROOM礼屋家居定制、强化复合地板、水磨石砖、玻璃砖、彩色乳胶漆
设计 | 白菜适家
施工 | 白菜适家