栏目类别:居住空间设计奖
作者:孙正栋
发布时间:2022-12-08 14:16
一提到室内设计,很多人就会问你要什么风格?
风格是对表像艺术形式的归纳,是一种不利于行业深耕的快餐文化。
真正的艺术形式表达,是不会拘泥于形式的,是千姿百态的。
但实际的生活中我们发现,几乎很少有人单纯的因为风格过时而重新装修。
真正影响生活质量的其实并不是形式,而是安全,健康,人性,功能的缺失。

多维设计
就是把单维的视觉设计延展到多维的嗅觉、触觉、听觉、味觉和知觉设计。
详细研究业主的生活方式和习惯,除了提供艺术审美,
还要统筹建筑结构、建筑给排水、采光与照明、保温与暖通、隔音降噪、健康材料、强电弱电、施工工艺等。
打通墙内墙外的设计和系统,整合全产业链先进技术和材料,缔造既美又好的舒适健康空间。

空间只有性格,而不是风格
空间的美学没有所谓的形式(风格),
空间感的塑造,照明和自然光的合理运用,色彩构成的想象,几何穿插与解构,这些都是手法,
过分的应用就会炫技,否则就会显得苍白,
真正的空间美学,就好比一个好的剧本,
有主题,有逻辑,高度统一,
又细节丰富,逻辑为主,技法辅助。
而这个剧本,就是你我之间,为业主量身打造的。
我们生活在一个浮躁而喧嚣的时代里
但是家仍然是每个人心中幽静的山谷
把家定义成舒适自由
淡泊宁静的所在
才支撑得起对生活的热爱
让心灵行至深处
如同落叶归根
找到了灵魂的归属

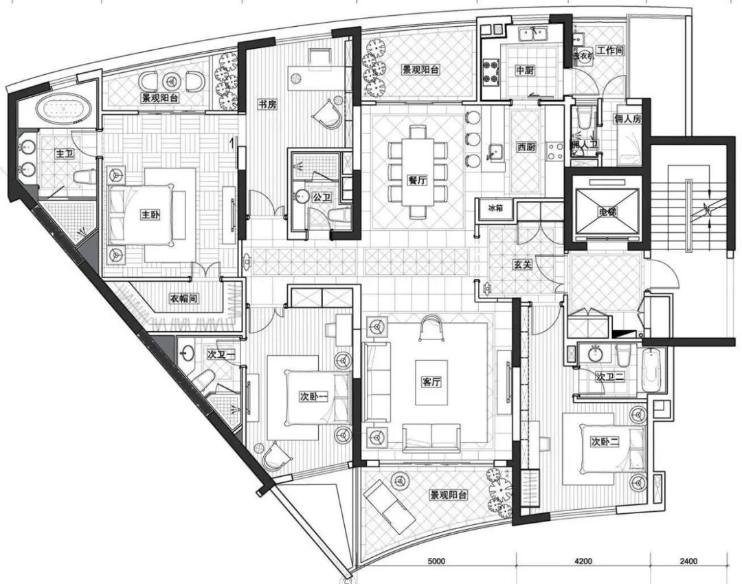
▲原始平面图
原始户型最大问题在户型三角区域难以利用,也不符合业主家庭的个性需求。
业主个性需求:
1.餐厅喜欢圆桌,女主人喜欢烘培。
2.有独立的学习空间。希望把书房移动至门口,儿童房靠近主卧,书房远离卧室。
3.希望有个花园,可以种植花草。
4.儿童房要厕所和淋浴房。
5.希望有大量储物空间,衣帽间做到细致分类,主卧不需要浴缸。
6.年轻人喜欢极简元素,长辈喜欢传统中式元素,风格定位上比较纠结。

▲施工布置平面图
新的平面中,尊崇功能人性化,装饰个性化,工艺安全化为设计导向。
充分考虑适老性,适儿性,确保地面防滑且没有高低差,部分墙体,柜体也导了圆角,柜门做暗拉手。
造型上不想太局限,不去做无意义的装饰。用细节来表达空间感和质感,用文化提炼来表达意境。
整个空间分动静两区,动区指共享的活动区,静区指私密的休息区。
整个动区相比原始布局更加通透,可开可合,最大程度的释放采光和通风。
西厨改回字动线,中厨房也由原来零碎空间联系起来,形成一个完整有功能区分的区域。
儿童房和老人房白天将门打开,通风和采光可直接传递。
儿童房在不大的空间容纳了各种功能,主卧隔而不断,围而不合,张弛有度。

入户右侧是带脚蹬鞋柜和置物柜,左侧是不规则分割衣柜及其他储物空间。
在墙体不可利用的区域,做了镜面装饰,即为了方便出行,也达到了延展了空间的目的。
统一的木饰面可规整视觉。
两扇移门可灵活分割动静分区,空间是一个多向十字动线,
即不一眼望穿,也不会压抑。

鞋蹬上方,做了雾化玻璃,可通电来控制玻璃可见度,这样使得厨房的光线能一直打到走道最远端。
鞋凳两侧柜体侧板,阳角导了弧度并做成了135°斜面,相比于直角面,斜面更有装饰性和开阔感。
镜面两侧用铝线灯作为玻璃和木作收口。
金属铝不易变形,且内置灯可作为氛围灯光使用,
也可模糊材质收口边界,更加精致神秘。

客厅照明采用无主灯设计。
吊顶的阳角处加了一圈定制弧型金属线条,避免了传统阳角处收缩性开裂和近看细节不足的问题。
传统的灯槽会影响空调的能效,为了空调更节能高效,我们把反光灯槽放在了没有出风口的一侧。
由于氛围灯的虚化效果,提升了空间高度感。

通过一扇可完全打开的移门,阳台区域原本地上有一根地梁,我们利用局部抬高的手法把地梁隐藏起来。
抬高区域用水磨石作为地面材质,水磨石具有耐磨的特点,并且有一种特殊的历史文化情结。
平地部分我们用了防腐木,尽可能的连接和传递自然。

地毯有出色的点缀效果,但不易于打理。我们选择一块小圆毯来替代传统大块的地毯
电视背景的设计灵感缘于大闹天宫宫门的元素,
孙悟空脚下是一个大殿的踏步,背后的鱼肚白石材纹路犹如缠绕的斗气。
以传统文化的内敛沉稳为出发点,融入现代设计语言,为空间注入唯美的古典情韵。

为了保护年幼的孩子的视力,我们采用了投影仪代替了传统的电视机。
投影设备以及影音设备全部都藏于吊顶内部,靠遥控器控制。

中国人的美学,崇尚极简,讲究盈满则溢,凡事留三分余地。
主张疏而不空,满而不溢,有种恰到好处的分寸感。
单人位的坐感非常舒适,结构和配电决定了居室的安全,
给排水和暖通决定了居室的健康,全屋定制决定了功能,而软体家具则决定了舒适,
艺术品决定了空间的人文高度。茶几分两个主要是想把功能多元化,
高的可根据需要来自由移动,不拘泥于传统茶几而存在。
为了达到完美的空间感,多人位沙发在兼顾舒适性的同时靠背不宜高,
单人位的选择则必须和餐厅的东方韵味做一个元素衔接。

餐厅灰色开放柜体部分原本就是空的,我们利用此处把空间做一个打断,
一边朝内给儿童房使用,一边朝外作为开放柜给餐厅使用。

软装技巧在于整体统一,在有限的风格里,渲染出无限的意境。
色彩搭配与中国文化气质相契合,米灰色内敛,桃木古色古香,是历经年代愈发醇厚而耐人寻味的稳重情调。

雾化玻璃通过电源可控制走道区域的可见度,即释放了采光,也保证了私密性。

中厨包含了一个备用厨房还有一个独立的储物间。
将所有功能区域细分后,使用起来会更加方便和人性。
西厨区将一些厨房用品以及烘培用具都收纳进了柜体。
酒柜用玻璃材质的柜门加上氛围灯光区分开了其他柜体,加上白色岩板的台面,整体和谐简练。

所有的木饰面有别于传统工艺,都采用了无钉无胶的工艺,
利用背挂件和金属条做固定和调节。更加环保的同时也更加精致。


靠近阳台的区域是用来给业主家饭后品茶和学习的区域,也方便今后母亲在烘培时也能照顾到孩子的学习。
因此该区域柜体的柜板设计了可收纳桌板,可满足不同需求的使用。

进入静区,会看到一个类似内殿般的过道,极具东方神韵的现代手法。
之所以把侧面两个卧室门内退是为了让空间有更好的延伸效果,视觉上会有更多的可能性,减少压抑感。

兵马桶好似大殿的侍卫庄严神圣。
意大利艺术漆与染色胡桃木的质感在灯光的映衬下,十分的神圣高贵庄严。

主卧衣帽间在转角位置选择了开放的层板式衣柜,其余空间则做成闭合衣柜。
使得原本规则空间能有一个打断效果,同时方便了弧形空间的利用率。

整个主卧的衣帽系统分为三种款型。
层板衣柜开放性好,适合展示奢饰品和无法做柜门的异型区域。
配合常规门板的使用,空间错落有致,闭合衣柜私密性好,适合储放杂物或者不美观物品。
玻璃门衣柜相比闭合衣柜,空间感好,更加通透,适合用在空间不是特别开阔,存放物件也不是特别凌乱的区域。

用一面轻钢弧形隔墙把主卧分成了3个区域,睡眠区和两个衣帽区。
做到了合理区分,保证空间私密性的同时,隔而不断,围而不合。
主卫门和整体木饰面做平,显得不那么突兀。
床后的衣帽区是半透明黑色玻璃柜门,中间用不同皮纹材质做梳妆台,高级感尽显。

主卫由于有大量的圆弧造型,因此采用了整墙的水磨石,避免瓷砖铺贴的棱角与缝隙感。
主卫配备了大量得到收纳空间,使得物品尽量不外露。
我们不仅要做到形式上的极简,更要做到生活上的极简。

长辈房我们希望把空间做的舒适自然,有一些文化底蕴,不想太刻板或者形式化。

长辈房的窗外景致很好,利益盎然,生机勃勃。
因此我们做了内外呼应,在背景等细节的处理上也围绕着生机这个主题,希望在这样的空间里有一个美好的状态。
床头一角,开关面板规整在金属框内更加的有细节和精致。

长辈房有时也需要独立的阅读和学习区域。

长辈房的卫生间做到了防滑和无障碍,并且都通了地暖。
折叠式坐浴,避免了长辈因洗澡时间久了劳累。

儿童房充分利用了每一寸空间,包括一些垂直空间。
带淋浴的独立卫生间,衣帽区,学习区还有双人床,一应俱全。
色调和家居这块我们希望做的生趣一些,可以激发儿童的想象力,度过一个愉快的童年。
我们将儿童床设计成一个游艇的造型,前后两面的壁纸也是我们自己设计的,是浦江两岸的日与夜,极具想象空间。
设计的价值除了外观,更多的是改善生活。
因此除了艺术性,还有功能性和安全性。
功能性上我们把床除了躺着的其他空间都做成了储物空间,
楼梯的每一阶踏步都是一个抽屉,楼梯的两侧空间也安排了收纳柜体和展示柜体。
在安全性方面,我们把所有的阳角都导了圆弧,避免儿童受伤,其次也是考虑了呼应建筑的外观和易于打理。

由于卫生间的洗手池比较小,无法容纳大部分用品,只是单纯用来洗手和填补墙体的结构凹凸区域。

因此我们在衣帽区增加了一个洗漱和饮水区,在儿童年幼时,可以方便夜间护理,
底部配备了一个带滑轮的移动抽屉,既可以储物,也可用作儿童练习自己刷牙和洗手的踏步。
考虑到安全细节,当踏步载重达到15kg时,轮子可自动锁止。


为了不影响家人休息,书房安排在了客厅另外一侧的区域,同时考虑了客房的功能,以备不时之需,
用液压五金的方式来隐藏床的位置可以让空间得到更多的释放。
写字台的设计灵感来自完全贴合了房屋的特殊形状,以及对外建筑元素的提炼。

客卫处因为结构柱的关系,原墙体有个十公分的拐角,这种拐角影响墙砖的铺贴和美观。
因此我们将下部墙体拉平,运用不同材质来丰富空间饰材的构造,
把卫浴龙头和马桶水箱预埋进了墙体,做了吉博力的同层排水系统,
并且增加了储物壁龛来替代传统五金。这样做使得空间更加简洁和易于打理,同时解决了反臭的问题。
除了客户看的到细节,更要注重客户看不懂的细节。
注重人文关怀与社会责任感,崇尚学术,才是行业的未来!

正饰的多维设计体系
私宅设计角度的本质还是以人为本,以业主的居住角度为第一导向,并非视觉艺术单一维度。因此住宅设计第一层需求应该是安全:包含了建筑结构合理重塑,精确合理的配电,防火防潮,承重结构工艺节点的设计。
第二层需求应该是健康:包含了精密给排水,暖通方案,空气综合质量的把控,采光通风的管理设计。
第三层需要是人性与功能:照明设计,收纳设计,适老性,适儿性考虑等。
第四层需求是精神文化需求:这层也就是我们目前对于设计的主流认知,原创度高的设计需要一定的文化和审美沉淀,而不是一味的套风格,追求的是思维逻辑的高度统一与精神表达。
第五层需求是实现行业价值:简单说就是突破行业价值的壁垒,得到跨行认同,推动产品研发,实现对外贸易。把行业的社会价值发挥到最大。
个人经历
2008年上海交通大学媒体与设计学院建筑室内设计
2008年中国海诚工程科技股份有限公司
第五设计所建筑设计师
2010年全筑建设股份有限公司全装修配套研发设计组长
2011年全筑建设股份有限公司副主任设计师
2013年创立正饰空间设计
(上海正饰室内装潢设计有限公司)
2015年创立正释工程(上海正示建筑装饰有限公司)
2020年创立正饰全木(上海正势工程安装有限公司)
中国建筑装饰协会软装陈设分会副会长单位
CBDA中国建筑装饰协会注册高级室内建筑师
ICDA国际建筑装饰设计协会注册高级室内设计师
2021 安德马丁发现中国好设计年度推荐设计师
2021 美国MUSE DESIGN AWARDS GOLD WINNER
2021 G+AWARDS全球精英设计大赛 TOP10
2021设博会华鼎奖住宅类金奖
2021 芒果奖全国TOP100
2021 第十四届大金内装设计大赛元气生活奖
2021 IDC AWARDS 住宅空间金奖
2021 40UNDER4012省杰出年轻设计师
2021icva亚太视觉艺术交流展优秀作品
2021设计中国成果邀请展入选作品-陈宅
2020法国双面神GPDP DESIGN AWARD
全球最受影响力TOP10
2020法国双面神GPDP DESIGN AWARD作品类大奖
2020第十三届IAI全球设计奖(室内奖)住宅类铜奖
2020金创意国际空间设计大奖别墅豪宅类铜奖-无界
2020金创意国际空间设计大奖别墅豪宅类创新奖-归属
2020华语设计领袖榜,百位卓越设计人物
2020华鼎奖年度中国杰出青年建筑室内设计师
2020中国空间陈设行业杰出青年设计师
2020CBDA中国装饰设计奖别墅类金奖
2020 德国红点概念奖reddot入围-归属
2020 APDC AWARD亚太设计精英邀请赛佳作奖
2020 INTERIOR DESIGN 三棵树健康+
室内设计大赛全国30强
2020 40UNDER4012省杰出年轻设计师
2019设计年度大会-年度精英设计师
2019中国设计品牌榜-最受客户好评奖
2019M+中国高端设计大赛上海赛区最佳人气奖
2019M+中国高端设计大赛省TOP30
2019金住奖,上海十大居住空间设计师
2019第十三届大金内装设计大赛优胜奖
2019 CEAPVA奖-icva亚太视觉艺术交流展优秀作品
2015第六届筑巢奖住宅类提名
2012上海市优秀室内设计师
项目信息
项目地点:上海市
楼盘信息:徐汇中凯城市之光名邸
空间性质:住宅
房屋类型:平层
住宅面积:340平
主持设计:孙正栋
方案设计团队:陈昕陈涛 杨顺 吴诚祥
深化设计:王木权 程显伟管晓
给排水设计:王正东 沈秋萍邢益鹏
配电设计:宋江 王亚运
软装设计:Eleven 钱羽翀 罗璋璋
照明设计:包玉茹 周祥祥
暖通设计:陈琼
项目管理:宋江 王木权
项目摄影:Brian Lu 陈昕