栏目类别:居住空间设计奖
作者:邝江涛
发布时间:2022-12-29 09:32

传统与创新间探索新贵生活
Aquimia奢宅全案家居,被定义为先进行业的效率与深厚工艺传统的专业知识的结合,是高端住宅的理想之选。这里的每一件出品都是一段独特的存在,表达了一种谨慎、从不炫耀的设计特征,充分凸显Aquimia简洁的线条感与纯粹的设计理念,以丰富的工艺和细节,为空间营造极致的舒适感。
Aquimia整合了衣柜衣帽间、中西厨厅、客厅视听墙柜及其他柜内等系统,同时融合室内护墙内门等木作系统产品于一体。结构的灵活性、模块化和定制化、精密的美学以及材料和制造方面的高质量是Aquimia延续意大利的设计精神,用精致的设计语言融合色彩与线条,向世人传递简约而华丽的生活方式。品牌精湛的加工工艺对各种高级材料进行了非凡演变,打造出了无与伦比的家居产品。
品牌历程
意大利家居奢侈品牌ALCHYMIA由艺术家Lucio Doro于1977年在意大利北部的Meda创建,以布里安萨精湛的手工艺技术定制版或限量版推出装饰面板和家具,用于豪华私人住宅和公共空间。
2012年拉菲德堡集团与ALCHYMIA达成中国市场的战略合作。拉菲德堡家居集团旗下拥有拉菲德堡家具、林语生活软装、拉菲原创高定及进口代理品牌,历经12年行业沉淀。2019年,作为意大利奢侈品牌为了实现中国市场的本土化,解决整案设计、生产、交付等问题,最终决定依靠拉菲德堡集团作为强有力的后盾,携手推出意式高端整案品牌:Aquimia(阿基米亚)。
Aquimia(阿基米亚)结合空间设计、高端定制、软装搭配、硬装施工及管理等各专业领域为客户提供意式高端整案服务。

项目背景及设计说明
我们期望每一个生活空间,皆是历久弥新,而非转瞬即逝。
设计回溯生活的本源,艺术是情感的传递,以现代审美指向,在构建相互依存的状态中找到恰如其分的角色关系,在追求极致的道路上,不断探索。
我们期望为居者提供一个温暖而优雅独特的家,提供独特的品味和独一无二的价值。

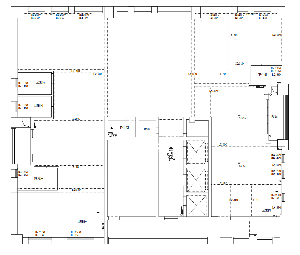
▲原始平面图-布局

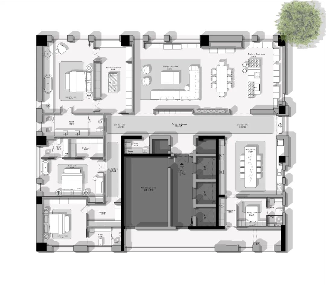
▲设计平面图-布局


通过设计将多种材质融合碰撞,温润的木皮,玻璃元素营造着空间的通透质感,而硬朗精致的金属与布艺元素的搭配,增添着空间时尚雅致的气息。
考虑到居者的收纳需求,设计摒弃大面积的墙体,充分利用定制柜体,提升空间的灵活可能性。

餐厅、厨房一体化设计,通过弱化功能区域的界限,从而增强室内空间的通透感,强调空间的连续性,
形成一个较大的视觉纵深,令空间层次更丰富,具有更强的流动性。

设计旨在让人在安静轻松的氛围中准备饭菜和用餐。
整个空间摈弃纷繁复杂的装饰造型,以大面积的深棕色柜体勾勒出空间的底色,配以素雅的浅棕色木材地面,
再辅以黑色作点缀,在柔和的自然光线下营造出静谧闲适的气质。

温润的木与柔和的灰色调铺陈卧室睡眠区,散发出一种雅致温馨的韵味,藉由皮革、布艺与木质自如融合,予人安心怡然之感。
卧室寝具是在仔细研究人体工程学和比例的基础上设计的,并使用经过工匠专业技术处理的天然高质量材料。
成品是手工技艺和设计的完美结合,不受时尚和潮流的影响,永远是最当代的。

专属定制的柜体系统,通过各类饰面及功能多样的内部部品组合,使空间适应特定的功能要求,实现自由定制的理念。
其中包括带智能感应灯带的玻璃鞋柜,叠衣区、悬挂区、置物区和饰物收纳区等,重塑衣帽间,呈现无限可能。



设计是一种感受、一种心态、一种舒适开放的生活方式。
一个愉悦的空间、一种尊贵的生活、一方独享的天地,都在这里找到了最合适的表达。